Bungalov Žírovy
Popis nemovitosti
Bungalov Žírovy
Žírovy, část obce Pičín, leží v krásné podbrdské krajině mezi Dobříší a Příbramí.
Rodinný dům, který Vám představujeme, je v současné době ve výstavbě a bude k nastěhování na podzim toho roku. Lokalita je opravdu velmi klidná, venkovského charakteru. Dům bude kompletně dokončený včetně základních terénních úprav.
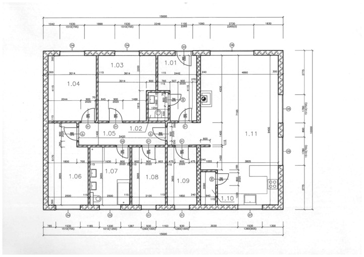
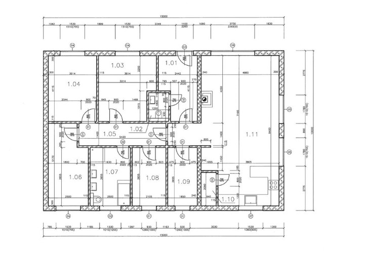
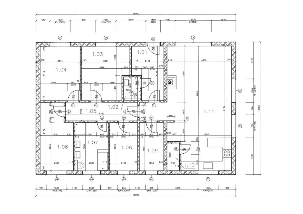
Přízemní dům o dispozici 5 kk má užitnou plochu 121 m2, pozemek je o výměře 1117 m2.
IS: el., voda z vlastní vrtné studny, jímka, podlahové vytápění v kombinaci s krbem.
Detaily k domu:
zděné zdivo, tepelná izolace, sedlová střecha se střešní krytinou Bramac, okna šestikomorová trojskla, vchodové dveře s bezpečnostním kováním, tepelné čerpadlo Daikin 10 kW, úsporná bodová svítidla, příprava na venkovní žaluzie, parkovací stání pro 2 auta, pojezdová brána s brankou, domovní telefon, terasa.
Součástí ceny jsou vnitřní zařizovací předměty – sanita a obklady v koupelně, podlahové krytiny, dveře vč. zárubní. Jediné, co zbývá na Vás, je kuchyňská linka. Ta není v ceně domu zahrnuta.
Žírovy-Pičín jsou na trase PID l. 392 (Praha-Příbram). Nájezd na dálnici D4 je 9 km.
V Pičíně je dobrá občanská vybavenost, obecní úřad, pošta, MŠ, ZŠ, hospoda, potraviny. Kompletní pak v nedaleké Příbrami (6,5 km) nebo Dobříš (12 km).
Neváhejte nás kontaktovat pro bližší info.Těšíme se na viděnou.
Popis nemovitosti | |||
---|---|---|---|
Nemovitost | Rodinný dům na PRODEJ | Energetická náročnost | B - Velmi úsporná |
Velikost | 5+KK | Užitná plocha | 121 m² |
Zastavěná plocha | 151 m² | Velikost pozemku | 1 117 m² |
Typ domu | Přízemní | Typ stavby | Samostatný |
Druh budovy | Cihlový | Počet podlaží budovy | 1 |
Počet pokojů | 5 pokojů a více | Voda | Studna |
Stav objektu | Ve výstavbě | Terasa | Ano |
Parkování u objektu | Ano | Elektoinstalace | 400/230V |
Odpad | Jímka | ||
Topení | ústřední |

ENERGON reality
Přidáno 03. 04. 2025
- AKTIVNÍ
- prodej
- Rodinné domy
9 490 000,- Kč
Žírovy
-
Žírovy
Zajímá vás tato nemovitost?
Podobné nemovitosti



17 950 000,- Kč
- AKTIVNÍ
- prodej
- Rodinné domy
Hostomice, Dubinská